繁星汇聚·岁月成集 | 菲拉设计 | 2025 | 中国浙江
vsszan204972310142301.png
F L Y  ¢  D E S I G N⊙# 繁星汇聚·岁月成集 #
美,本就是千万种情绪的集合,是不同时间、不同心境下我们对共鸣的隐秘渴求。围绕居者感受将多层次的情绪以实物美学的具象形式表达,包豪斯的利落线条与轻法的柔美不期而遇,侘寂的拙朴温润在光阴中沉淀——折衷,是对生活最自由的注解,当器物与空间在呼吸间共振,家不再只是居所而已,是一场流动的情绪盛宴。
vsszan204972310142302.png
客厅 / Living Room
vsszan204972310142303.png
客厅 / Living Room
vsszan204972310142304.png
客厅 / Living Room
vsszan204972310142305.png
客厅 / Living Room
居者对于精装房的硬改希望保留在最小尺度,适度的微调搭配软装的铺陈让空间焕发新的面貌。期待多元风格的表法让家的每处角落都流转着动人的情绪,满载生活气息的同时,满而不冗,多而不乱。保持原硬装基调以极高兼容性容纳家居的多种可能,调整横厅布局,沙发靠窗摆放最大化客厅空间,过道融于客厅的同时,餐厅就餐的落座动线也更加宽敞便利。
vsszan204972310142306.png
客厅 / Living Room
vsszan204972310142307.png
客厅 / Living Room
vsszan204972310142308.png
客厅 / Living Room
vsszan204972310142309.png
客厅 / Living Room
我们的情绪从不单一,家也该容纳所有真实的模样,不困于某种主义的标签,糅合有包豪斯、轻法、侘寂于一室的折衷是情感最生动的表达; 精心挑选的每件单品放置在不同的生活场景之中,一步一景、易景换情,丝滑承接人物丰富的情绪流转。亮眼的复古绿作为空间的主要点缀色丰富家居色彩,情绪明快而温柔。同时以不同明度与饱和度的绿丰富其层次感,复古绿的一方斗柜、豆绿色布艺沙发、以及绿植插花的葱茏绿意,与实木、棉麻、藤编的交织,肌理与色彩达成的平衡,浪漫的生机与诗意的复古感悄然交融。
vsszan2049723101423010.png
客厅 / Living Room
vsszan2049723101423011.png
客厅 / Living Room
vsszan2049723101423012.png
客厅 / Living Room
vsszan2049723101423013.png
客厅 / Living Room
vsszan2049723101423014.png
客厅 / Living Room
冰冷地砖更换为复古色的地板,阳光透过温润的百叶窗、撒到细腻的织物上、壁炉上,光影跃动细腻动人。晨光爬上窗台,木纹在慢述着故事,暮色漫过沙发时,织物发出呢喃。阴天傍晚或是晴日夕阳,日与夜的光线流转,晨昏执笔,光影为墨,肌理与记忆交织下的家在多样的天气下有着丰富的故事脉络有待发生,鲜活的家居情绪陪伴他们对生活细腻的感知、治愈日常的褶皱。
vsszan2049723101423015.png
客厅 / Living Room
vsszan2049723101423016.png
客厅 / Living Room
vsszan2049723101423017.png
餐厅 / Dining Room
vsszan2049723101423018.png
餐厅 / Dining Room

入户拱形门廊增添法式温婉浪漫气息,如框景镜头般将望向餐厅视角变为入户美学的置景画面。包豪斯的克制与轻法的浪漫共舞,木质百叶帘、蚕丝竹节吊灯、中古餐椅,富有韵律地排列呈现在眼前。餐厅一旁厨房门更换为复古老钢门+艺术玻璃的组合,集功能性与装饰性一体,且具备通透感与遮挡性。
vsszan2049723101423019.png
餐厅 / Dining Room
vsszan2049723101423020.png
餐厅 / Dining Room
vsszan2049723101423021.png
餐厅 / Dining Room
vsszan2049723101423022.png
餐厅 / Dining Room
vsszan2049723101423023.png
书房 / Study
拓宽书房房门,吊轨式玻璃折叠门让内与外的距离更为紧密,开合随性的折叠门可与公区适当互动,玻璃的通透感也将室内的光线流转交互,与厨房门一起加深空间尺度,不受干扰各司其职的功能区之间依旧可以保留家居空间的紧密感。
vsszan2049723101423024.png
书房 / Study
vsszan2049723101423025.png
书房 / Study
vsszan2049723101423026.png
主卧 / Master Bedroom
有时无需大刀阔斧,一个巧妙的微调就可事半功倍。原卧室布局不合适、功能欠缺,调整卧室门后动线重置,调转床头朝向解决卫生间门正对床问题,床尾靠墙处也有了增设满柜解决收纳不足的问题。满柜之中包含有包包放置区、次净衣区以及梳妆台,轻松应对细腻的生活细节。延续公区色彩元素,床体与窗帘皆是复古绿,犹如朵朵梅花的树瘤肌理木皮的梳妆台背景饰面,以及带有波普风的小物件应用,让卧室静美柔和的同时,却不乏暗藏其中的小调皮。
vsszan2049723101423027.png
主卧 / Master Bedroom
vsszan2049723101423028.png
主卧 / Master Bedroom
vsszan2049723101423029.png
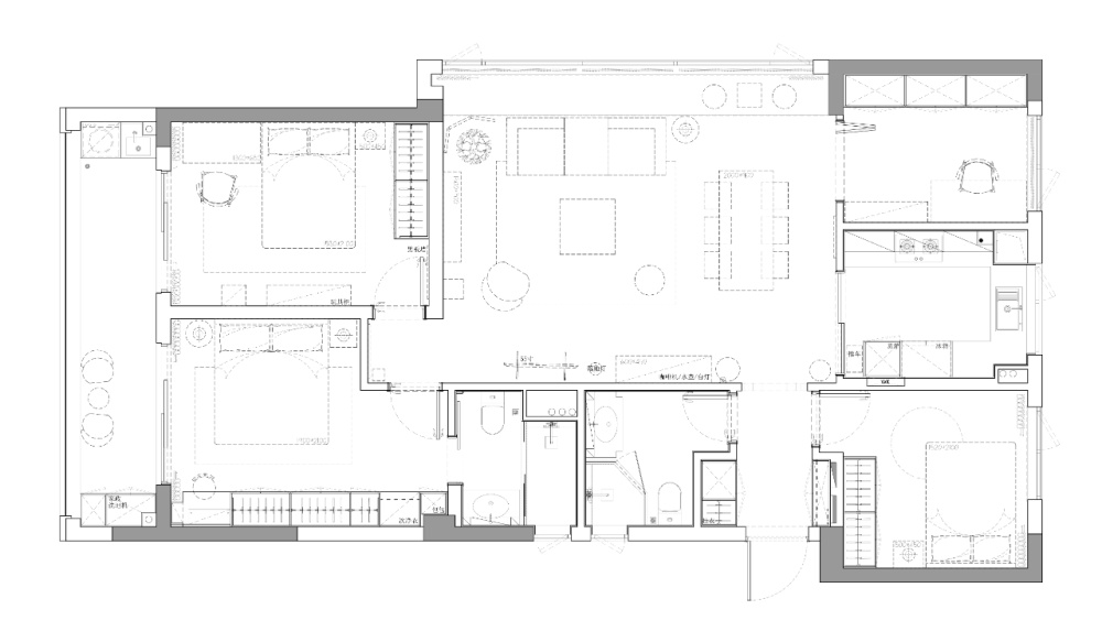
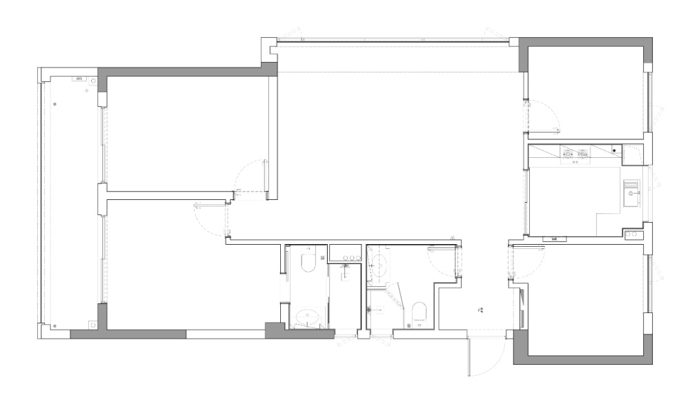
原始图
vsszan2049723101423030.png
平面图

·精装改造前后对比·
vsszan2049723101423031.png
vsszan2049723101423032.png
vsszan2049723101423033.png
vsszan2049723101423034.png
vsszan2049723101423035.png


  • 设计机构 / 菲拉设计
  • 项目类型 / 全案设计
  • 施工单位 / 菲拉设计
  • 项目地址 / 浙江杭州·沁桂轩
  • 户型 /  四室两厅
  • 面积 / 137㎡
  • 转自:菲拉设计
  • 图片©菲拉设计
  • 编辑:序赞网
  • 阅读原文

AI文本分析中……
AI色彩命名中……

序赞Ai时刻等待着你的命令!~

与Ai对话形式持续执行相关Ai智能体任务。

syhgdesign2025-11-1 02:00:21
感谢楼主辛苦分享
您需要登录后才可以回帖 登录 | 注册序赞号

快速回复 返回顶部 返回列表