时光驻足,静谧自然 | 时光筑造 | 2025 | 中国深圳
vsszan204945300102301.png



本案是位于深圳的一套联排别墅,室内空间运用大量拱形元素,在建筑关系上也做了许多呼应,墙面采用微水泥肌理材质,达成空间语言的统一。


vsszan204945300102302.png
vsszan204945300102303.png
vsszan204945300102304.png



素白拱门框景,将光线与建筑结构编织成画,粗粝纹理的吊灯悬于上空,原木餐椅围合餐桌,承载着三餐四季的烟火。


vsszan204945300102305.png
vsszan204945300102306.png
vsszan204945300102307.png



向自然借景,弧形顶与窗外绿意对话,开放式茶室嵌在落地窗前,煮茶时,山风穿堂、树影爬桌,把“人在草木间” 的意境揉进别墅的日常里。


vsszan204945300102308.png
vsszan204945300102309.png
vsszan2049453001023010.png



室内楼梯设计以拱形元素为核心,通过架构关系确立其空间中枢地位。壁炉采用解构主义的手法,形成秩序叠级。


vsszan2049453001023011.png
vsszan2049453001023012.png
vsszan2049453001023013.png
vsszan2049453001023014.png
vsszan2049453001023015.png
vsszan2049453001023016.png



以建筑力量为依托的设计手法,赋予空间独特而沉稳的气质,使弧形元素成为塑造空间结构与氛围的核心语言,既保持了建筑框架的纯粹性,又让空间因这些线条而焕发出自然生长般的韵律感。


vsszan2049453001023017.png
vsszan2049453001023018.png
vsszan2049453001023019.png



负一楼设置成酒吧区,下沉式客厅,是家的“隐秘宇宙”,也让酒吧区的微醺感更浓。


vsszan2049453001023020.png
vsszan2049453001023021.png



拱窗截取自然作几何小品,素墙承接光影与人文。


vsszan2049453001023022.png
vsszan2049453001023023.png



阶梯式书架向上生长,把时光垒成知识的塔。


vsszan2049453001023024.png
vsszan2049453001023025.png
vsszan2049453001023026.png



穹顶设计打破常规,赋予空间独特的建筑韵律,每一寸都藏着对“居有常,心自安” 的注解,把家的治愈力,深植在这方穹顶之下。


vsszan2049453001023027.png
vsszan2049453001023028.png
vsszan2049453001023029.png
vsszan2049453001023030.png



普拉达绿大理石台盆撞色温润墙面,圆窗漏进慵懒光线,弧形余韵漫进空间,环形动线串联起洗漱日常。


vsszan2049453001023031.png


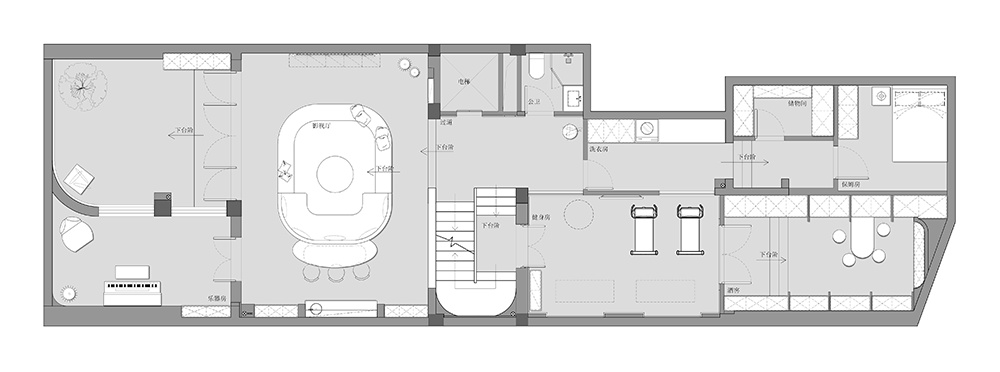
△负一层平面图


vsszan2049453001023032.png


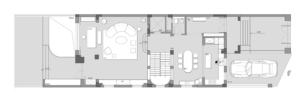
△一层平面图


vsszan2049453001023033.png


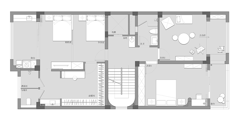
△二层平面图


vsszan2049453001023034.png


△三层平面图



项目地址:深圳市
项目面积:550㎡
设计机构:时光筑造

AI文本分析中……
AI色彩命名中……

序赞Ai时刻等待着你的命令!~

与Ai对话形式持续执行相关Ai智能体任务。

syhgdesign2025-10-31 01:14:38
感谢楼主辛苦分享
您需要登录后才可以回帖 登录 | 注册序赞号

快速回复 返回顶部 返回列表