480㎡极简别墅 | 木造设计 | 2025 | 中国广东

vsszan204923290054181.png



这栋480㎡独栋别墅位于揭阳揭东区飞鹰山脚下,业主是一对年轻且充满活力的四口之家。基于业主对生活品质及追求细节的诉求,旨在打造一处被自然环绕的住宅,期望在这里能让以往的生活形成质的蜕变,成为既舒适和赋有功能性的避世之所。


vsszan204923290054182.png
vsszan204923290054183.png



起居室稳重而含蓄,中心以一张宽大的L形沙发整齐布置,沙发上散落着几何纹抱枕,在光线的映射下尽显细腻,大面积落地窗宛如画框般将室外景观引入室内,弱化室内外的边界感,在两者间形成一种微妙的平衡。


vsszan204923290054184.png
vsszan204923290054185.png
vsszan204923290054186.png



简洁的墙面和天花以一致的色系强化挑高空间的视觉张力,增强空间的多重感官体验,结构柱通过圆弧修饰,与天花相互衔接,仿佛是由此生长,而不刻意彰显。


vsszan204923290054187.png
vsszan204923290054188.png
vsszan204923290054189.png



设计师引入盒子概念对L型墙进行包裹,从而塑造成几何形体的收纳系统,让杂乱空间变得井井有条,门板用黑橡木饰面镶嵌骨骼线来修饰,在功能与美学的兼顾下形成统一的视觉延伸感,为整个空间增添一份复古典雅的气息。


vsszan2049232900541810.png
vsszan2049232900541811.png
vsszan2049232900541812.png



超白洞打造的中岛台形成入户的视觉焦点,其简洁的材质和结构语言,在黑白相间的空间基调下,构筑出雕塑般质感。


vsszan2049232900541813.png
vsszan2049232900541814.png
vsszan2049232900541815.png
vsszan2049232900541816.png



温暖质朴的橡木圆桌,是连接几代人情感与记忆的纽带,一家人围坐成团,手中餐具碰撞出轻柔声响,笑声谈话声交织一起,其乐融融,互相分享彼此的趣事。


vsszan2049232900541817.png
vsszan2049232900541818.png
vsszan2049232900541819.png



移步到厨房,则以明亮的色系呈现,通过统一的白延续整个橱柜系统,与另一侧的黑色柜体形成对比性反差,既不张扬也不刻意,在光影交织间巧妙地融合。


vsszan2049232900541820.png
vsszan2049232900541821.png
vsszan2049232900541822.png



在客厅侧边,将原有墙体界面打开,重新整合,让楼梯间释放出来,使其成为连接一层和二层的动线引导。


vsszan2049232900541823.png
vsszan2049232900541824.png
vsszan2049232900541825.png



统一的桦木地板贯穿整个层次,同时结合壁炉进行体块咬合,呈现出浑然一体的组合关系,也为屋主创造一个情感共鸣的生活场景。


vsszan2049232900541826.png
vsszan2049232900541827.png
vsszan2049232900541828.png
vsszan2049232900541829.png
vsszan2049232900541830.png



主卧则是宁静和舒适的避风港,推开房门,一股温馨的气息扑面而来,仿佛置身于一个静谧而安逸的世界,让人在繁忙的一天后得到放松。


vsszan2049232900541831.png
vsszan2049232900541832.png
vsszan2049232900541833.png
vsszan2049232900541834.png
vsszan2049232900541835.png



卧室、主卫和衣帽间通过移门界定,促成洄游动线,缓缓打开,镜面闪烁的光芒映射着洗浴者的身影,增添一丝神秘的美感。


vsszan2049232900541836.png
vsszan2049232900541837.png
vsszan2049232900541838.png



步入儿童空间,原木色的上床下桌宛如一座微型城堡,错落有致的阶梯书桌像叠放的魔方,每一层踏面都暗藏储物收纳,将杂乱无章的毛绒玩偶藏于抽屉内。


vsszan2049232900541839.png
vsszan2049232900541840.png



上行至三层,次卧的弧形穹顶成为引导进入空间的仪式感,流畅的结构无限延伸,简洁和舒展,以此来强调空间的纵深感。


vsszan2049232900541841.png
vsszan2049232900541842.png
vsszan2049232900541843.png
vsszan2049232900541844.png



床摆放正中,床头整合成书桌形式,二者连贯让其成为梳妆打扮及阅读的角落,四周形成洄游动线,让空间丰富和自由。


vsszan2049232900541845.png



家,不再是简单的定义,它承载着居住者对生活的理想向往,客厅沙发上的旧书与茶盏,暮色里厨房的烟火气,这些平凡片段,编织成生活最本真的模样,而此刻,这便是家的理想居所。


vsszan2049232900541846.png


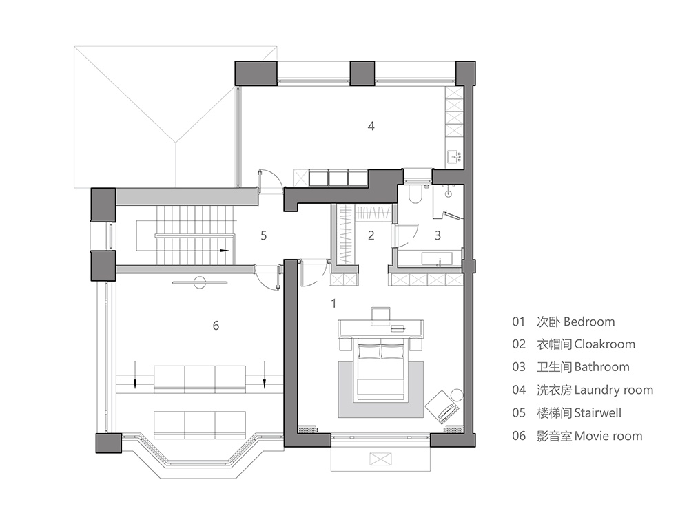
一楼平面图


vsszan2049232900541847.png


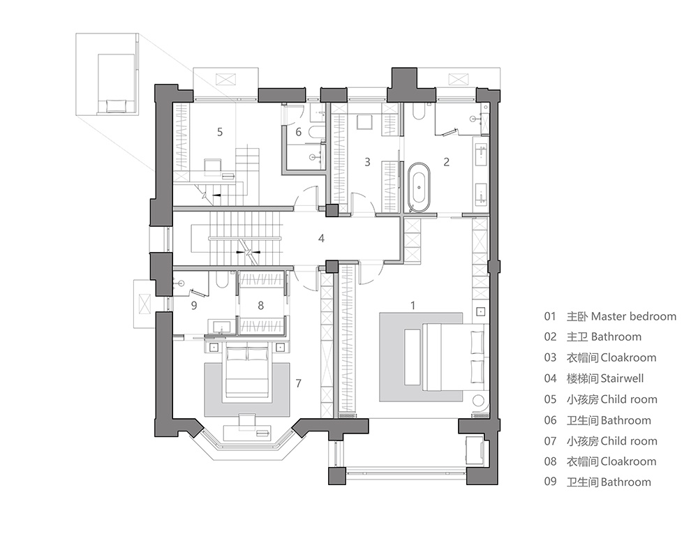
二楼平面图


vsszan2049232900541848.png

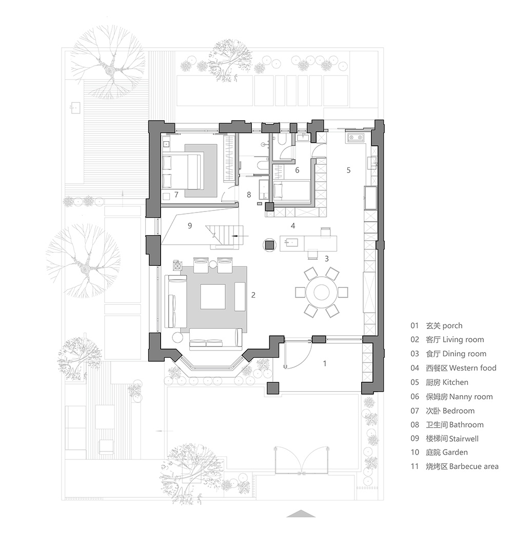
三楼平面图



项目名称:未来期许的家
项目地址:广东省揭阳市
项目面积:480 ㎡
设计时间:2023年7月
设计团队:MUZAO木造设计
主案设计:邱林锋
空间摄影:ACT STUDIO


vsszan2049232900541849.png


MUZAO木造设计作为一间室内设计工作室,是一家致力于探索室内设计的多元化创意服务机构,在展览空间、品牌、商业餐饮空间、私人住宅等领域为业主提供可实施的调研分析及多媒体设计服务。
在设计中,我们始终秉承创新性,同时对设计持多样性的开放态度,以跨界的设计思维和敏锐的视觉介入设计,赋予每个设计独特的整体形象。致力于材料研究、关注细节工艺、探索不同尺度的空间现状,突破空间界限。


  
AI文本分析中……
AI色彩命名中……

序赞Ai时刻等待着你的命令!~

与Ai对话形式持续执行相关Ai智能体任务。

暂时没有评论,你回一个呗!~

您需要登录后才可以回帖 登录 | 注册序赞号

快速回复 返回顶部 返回列表