武汉麓客岛餐厅 | 大料建筑 | 2025 | 中国湖北

23年初,麓湖要在武汉开新盘,我们之前合作过多次,比如成都的一片森林儿童博物馆、伊甸岛建筑、CPI规划,海南的世纪海角商业街、骑楼老街规划等,大家熟门熟路的,也就又做了一个为儿童游乐场配套的餐厅。


▽树林中的餐厅©朱雨蒙

vsszan204910281022561.jpg

▽餐厅外观©朱雨蒙

vsszan204910281022562.jpg

▽勇者小屋环抱着儿童游乐场©朱雨蒙

vsszan204910281022563.jpg



前期策划这个餐厅叫“勇者小屋”,因其周围多是有些难度的娱乐攀爬设施,希望激发孩子们克服困难的勇气之意吧。房子不大,室内不到200平米,但期望能延展出大量的半室外空间,供游人纳凉休息。并且它作为游人进岛的门户,远远就能被看到。


▽勇者小屋与周边的攀爬设施©朱雨蒙

vsszan204910281022564.jpg

▽通透的室内空间©朱雨蒙

vsszan204910281022565.jpg

▽大屋顶下的荫凉空间©朱雨蒙

vsszan204910281022566.jpg

▽餐厅位于园区的门户位置©朱雨蒙

vsszan204910281022567.jpg



那段时间我总看南宋蒋捷的词,尤爱一些直接直白的表达,比如“在何处,闲游闲玩“;”梦也梦也,梦不到,寒水空流“;”红了樱桃,绿了芭蕉“,总有种说不清的轻快奇异。于是乎,在做这个设计时,多少受些影响,没多想,就想,做一座山–”跳舞的小山“。


▽跳舞的小山©朱雨蒙

vsszan204910281022568.jpg
vsszan204910281022569.jpg



而如何让小山跳起舞来呢?想起两张画,一张是马蒂斯在40岁时画的《舞蹈》,另一张是王希孟18岁画的《千里江山图》,试着捕捉其中的生命力和少年意气。造型模仿也好,气韵意会也罢,总之要转化到建筑空间上,多次尝试后,我和徐丹分别画了张画,我用毛笔画了个母题,规律叠加渐变后似树林似山峦似云彩;在这基础上徐丹直接用色块画出了有空间尺度的形体。


▽Henri  Matisse《Dance》(左)&王希孟《千里江山图》(右)©网络

vsszan2049102810225610.jpg

▽毛笔母题(左)&色块形体(右)©大料建筑

vsszan2049102810225611.jpg



慢慢的糅合场地、功能、尺度、构造、材料等进来,更重要的是调整视觉符号与身体感受的关系,终于捏出了建筑方案,甚至是两个方案。第一种用氧化铜板,第二种用实木条,显然,第一种出现了大面积的双曲面造型,过于昂贵了,所以最终以第二种全平面的方案来实施。


▽两种方案©大料建筑

vsszan2049102810225612.jpg



因为是武汉麓客岛最先开放的单体建筑之一,多少要起到门面的作用,所以建筑布局沿着岛的边界微微弯曲展开的同时,建筑高度需要够饱满,透过树林远远在河对岸就可望到。顺着开放的草坪,穿梭林间,慢慢靠近建筑时,“小山”的形态十分突出,吸引着游人一探究竟。


▽建筑布局弯曲展开©朱雨蒙

vsszan2049102810225613.jpg

▽饱满的建筑形体©朱雨蒙

vsszan2049102810225614.jpg

▽“小山”形态突出©朱雨蒙

vsszan2049102810225615.jpg

▽林间的“小山”©朱雨蒙

vsszan2049102810225616.jpg



爬上一段草坡,建筑突然完全出现眼前,巨大的实木体量漂浮于地面之上,一座座三角椎相互拉着手,舞动摇曳。孩子们往往会被眼前的巨物刺激的兴奋起来,飞奔过去,冲向十几米大的悬挑屋顶,建筑又像一座飞船正待飞起,情绪和身体也再次被带向高潮。


▽草坡之上的巨大实木三角椎©朱雨蒙

vsszan2049102810225617.jpg

▽穿过树林建筑完全展现©朱雨蒙

vsszan2049102810225618.jpg

▽巨大的悬挑屋顶©朱雨蒙

vsszan2049102810225619.jpg

▽正待飞起的飞船©朱雨蒙

vsszan2049102810225620.jpg

▽正待飞起的飞船©朱雨蒙

vsszan2049102810225621.jpg



随后而来的家长们倒也自在,悠然在如巨树遮蔽下的荫凉里闲坐漫聊,眼前展开孩子们奔跑跳跃的身影,时不时叫他们过来休息喝水,隐在通透玻璃内的餐水吧生意也便兴隆了起来。


▽家长在屋檐下闲坐漫聊©朱雨蒙

vsszan2049102810225622.jpg
vsszan2049102810225623.jpg

▽餐厅围合着攀爬设施©朱雨蒙

vsszan2049102810225624.jpg

▽通透的餐厅室内©朱雨蒙

vsszan2049102810225625.jpg

▽草坡上的餐厅©朱雨蒙

vsszan2049102810225626.jpg
vsszan2049102810225627.jpg



为了使建筑层层叠叠的山形屋顶仿佛从大地里蹦跃而起,主体结构采用了四束组合钢柱来支撑,并且通过外包岩板来分别成为户外座椅,外卖档口,洗手台等功能。上部屋顶为钢网架结构,来实现大的跨度及悬挑,通体外包实木板条,并设置了一些光孔,随之室内的灯具和空调口也在孔内,而厨房和空调等大型设备也皆隐藏于屋顶。


▽钢结构外包岩板的造型©朱雨蒙

vsszan2049102810225628.jpg
vsszan2049102810225629.jpg

▽钢网架结构的悬挑屋顶©朱雨蒙

vsszan2049102810225630.jpg

▽屋顶细部的实木板条©朱雨蒙

vsszan2049102810225631.jpg

▽室内天花板的光孔©朱雨蒙

vsszan2049102810225632.jpg



在设计阶段中,曾设想屋顶内也可以进人,增加餐饮位置及多样体验,但后来从运营角度考虑取消掉了,但造型还是保留,毕竟不是只有人进入的空间才是有功能性的,人们的视觉体验以及园区整体空间层次的考量也是功能性的一部分。


▽“小山”造型屋顶©朱雨蒙

vsszan2049102810225633.jpg

▽从河、路到餐厅和游乐场的整体空间层次©朱雨蒙

vsszan2049102810225634.jpg



我们人类本身并不健全,需要外挂的帮助,比如我们需要鞋来帮助奔跑,需要筷子来帮助进食,需要汽车让我们移动更快,需要电脑让我们更聪明,这些貌似功能性的外挂,帮助我们成“人”。同样,我们的心智也是不健全的,我们需要崇高需要谦逊,需要尊严需要勇气,这些也需要外挂的帮助,比如音乐比如艺术,同样建筑也承担这一部分功能,来帮助我们成为更完整的人。


▽人、动植物、建筑的关系©朱雨蒙

vsszan2049102810225635.jpg

▽休息的人们©朱雨蒙

vsszan2049102810225636.jpg
vsszan2049102810225637.jpg



这个设计的着眼点,于我而言更偏后者,并通过人们的“本能”来驱动。首先,我们先看到“小山符号“时,固有的记忆、情感被本能的唤起,引导我们进入有关自然和童真的情境;之后,走近建筑,巨大的体量、舞动的姿态和奇特的造型,肾上腺素刺激着身体感知本能调动了起来,使得我们进入到某种兴奋活跃的状态;在这种状态下,我们人类心智的那些空洞被放大,也许孩子们会更勇敢的冲向一座座攀爬设施,在玩乐间去探索去挑战,这也许就是勇者小屋的意义所在。


▽“小山”符号©朱雨蒙

vsszan2049102810225638.jpg

▽随着光线总在变化的色彩表情©朱雨蒙

vsszan2049102810225639.jpg
vsszan2049102810225640.jpg

▽一层平面图© 大料建筑

vsszan2049102810225641.jpg

▽屋顶平面图© 大料建筑

vsszan2049102810225642.jpg

▽东立面图© 大料建筑

vsszan2049102810225643.jpg

▽剖面图© 大料建筑

vsszan2049102810225644.jpg

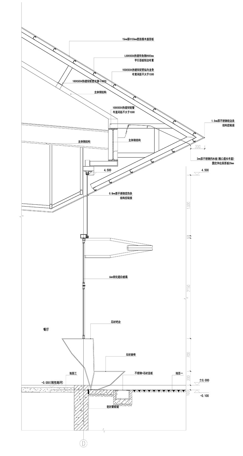
▽墙身大样图© 大料建筑

vsszan2049102810225645.jpg
vsszan2049102810225646.jpg
vsszan2049102810225647.jpg
vsszan2049102810225648.jpg


位置:武汉,麓客岛
时间:2023-2025
功能:餐厅
面积:200㎡
业主:成都麓湖文化旅游开发有限公司/武汉麓华房地产有限公司
建筑+内装: 大料建筑 (刘阳,徐丹,胡祎伟)
施工图设计:上海联创设计集团有限公司
商家内装设计:武汉十二平方设计咨询有限公司
景观设计:WTD纬图设计
摄影:朱雨蒙

AI文本分析中……
AI色彩命名中……

序赞Ai时刻等待着你的命令!~

与Ai对话形式持续执行相关Ai智能体任务。

95qabc2025-10-28 15:57:47
谢谢分享!!!谢谢分享!
syhgdesign2025-10-30 15:42:10
感谢楼主辛苦分享
您需要登录后才可以回帖 登录 | 注册序赞号

快速回复 返回顶部 返回列表