里物烘焙店 | 之一空间设计 | 2025 | 中国河南
“里物”烘焙店位于河南西峡一片密集的老城区中。项目起始于一栋传统的砖混结构民宅,其原始的封闭结构、3.8米的层高以及一个被遮盖的天井,使得内部空间昏暗而局促。业主希望将其改造为一个集烘焙工坊、咖啡茶饮与社区客厅功能于一体的复合空间,并要求保留在地街巷的烟火记忆。
▽项目外立面© 李想

vsszan204810221654111.jpg

▽室内空间概览© 李想

vsszan204810221654112.jpg

设计的挑战在于如何打破固有界限,在狭小空间内引入光,让老建筑获得新生,并融入当代社区生活。于是我们决定以“自然渗透”为核心理念展开设计,我们希望它不只卖面包,更成为老街生活情绪的延续。

▽自然渗透© 李想

vsszan204810221654113.jpg

设计的核心动作很坚决:拆除原有天井的封闭顶面,以一个轻盈的钢结构玻璃采光顶取而代之。这一举动,让建筑拥有了一个会呼吸的“生态中庭”。阳光、风雨、落叶自此成为空间的常客,光影随时间在微水泥墙面与莱姆石地面上游走。

▽天井中庭全景© 李想

vsszan204810221654114.jpg

我们为天井设计了一套隐形的雨水管理系统,使其可随天气在“干燥的日光庭院”与“湿润的反射池”两种模式间自由切换。空间的情绪,自此由自然天气定义。顶部电动窗帘50%透光设计,过滤午后强光。四壁保留原始砖墙肌理,采用微水泥进行防潮处理。

▽天井下的卡座区© 李想

vsszan204810221654115.jpg

店门头以“自然质感与温暖氛围的融合”为理念,选用深棕色金属板材经做旧处理,复刻出木质的温润与时光的痕迹。沉稳的色调与内部暖光相呼应,多层次错落结构强化了视觉厚度,下方通透的玻璃橱窗与开放入口,将店内温馨场景悄然外露,吸引行人驻足窥探。

▽通透的玻璃让整个室内都能享受到自然光


The transparent glass floods the entire interior with natural light © 李想


vsszan204810221654116.jpg
vsszan204810221654117.jpg

我们保留的原建筑结构作为基底© 之一空间设计事务所
vsszan204810221654118.jpg


▽走道尽头是烘焙操作间© 李想

vsszan204810221654119.jpg

环绕天井,我们布置了一条回游动线:透明玻璃与窑变砖砌筑的开放后厨、散座区、以及一侧阶梯式阅读区被流畅串联,人在其中行走,视线却始终与自然、与他人、与烘焙的烟火气轻柔相接、相连。

▽面包甜品柜台© 李想

vsszan2048102216541110.jpg

烘焙工坊向客区开放,工作台高度设定在850mm的最佳观赏视角,让顾客可以看到面包制作的全过程。设备区与客区保持3米的安全与舒适距离,并通过负压系统解决油烟问题。定制的黑色哑光金属货架,兼具面包陈列与工艺展示的双重功能,使功能本身成为一种装饰。

▽咖啡吧台© 李想

vsszan2048102216541111.jpg

▽卡座观景位© 李想

vsszan2048102216541112.jpg

▽喝咖啡吃甜点© 李想

vsszan2048102216541113.jpg

▽阶梯式休憩区© 李想

vsszan2048102216541114.jpg

阳光透过天井的玻璃顶,在陶土墙面留下斑驳的光影,莱姆石地面映出温润的反光,老木家具在岁月中愈发深沉——这三种天然材料共同构筑了一个会呼吸的空间,让老街焕发新的生命力。

▽客座区© 李想

vsszan2048102216541115.jpg

▽室内陈设细节© 李想

vsszan2048102216541116.jpg

当日光褪去,暮色降临,室内暖光透过玻璃顶,与老街渐次亮起的灯光交融。我们忽然明了:最好的设计,并非无中生有的创造,而是一种温柔的唤醒。 它唤醒沉睡的空间,唤醒被忽略的自然,也唤醒深植于我们内心的、对美好生活的感知力。里物,便是这样一处唤醒之所。

▽材质细部© 李想

vsszan2048102216541117.jpg
vsszan2048102216541118.jpg

▽平面图© 之一空间设计事务所

vsszan2048102216541119.jpg

▽立面图© 之一空间设计事务所

vsszan2048102216541120.jpg

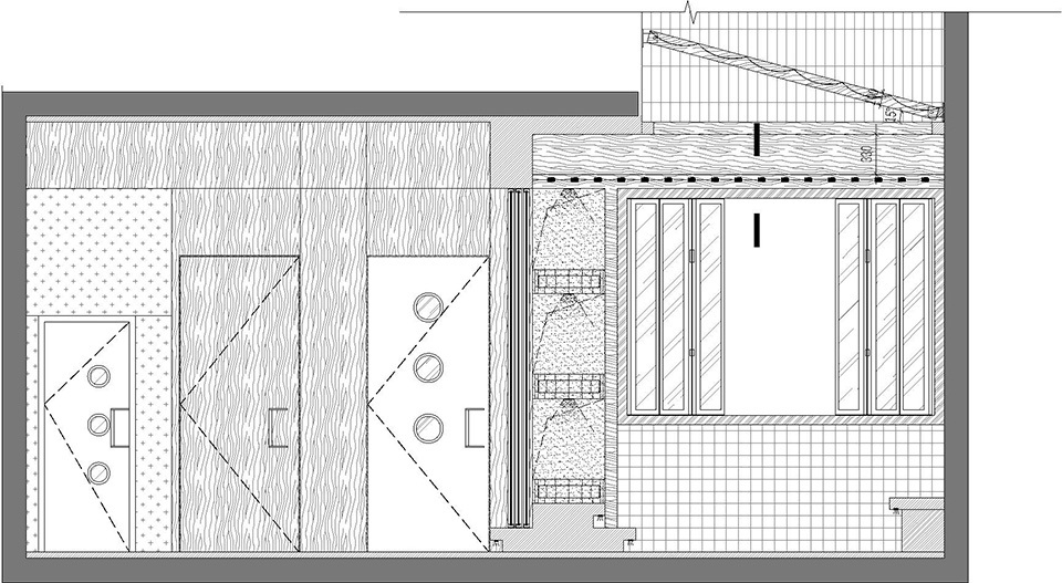
▽剖面图© 之一空间设计事务所

vsszan2048102216541121.jpg
vsszan2048102216541122.jpg

  • 项目名称:里物烘焙
  • 项目类型:建筑改造、庭院设计、室内设计
  • 设计方:之一设计研究室
  • 设计时间:2024年11月
  • 竣工时间:2025年4月
  • 主创及设计团队:
  • 主持设计:李强 主案设计:杨紫婷
  • 团队:胡舒展 | 邬成昊 | 张婧瑜
  • 项目地址:中国·河南·西峡
  • 建筑面积:120㎡
  • 摄影版权:李想
  • 材料:树瘤木饰面、陶土方块、艺术涂料、锈板
vsszan2048102216541123.jpg
Ai 分析中……

序赞Ai时刻等待着你的命令!~

与Ai对话形式持续执行相关Ai智能体任务。

暂时没有评论,你回一个呗!~

您需要登录后才可以回帖 登录 | 注册序赞号

快速回复 返回顶部 返回列表