橡树上的乡村别墅 | 111D.Buro | 2025 | 俄罗斯
vsszan50527180015511.jpg
vsszan50527180015512.jpg


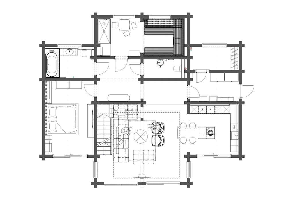
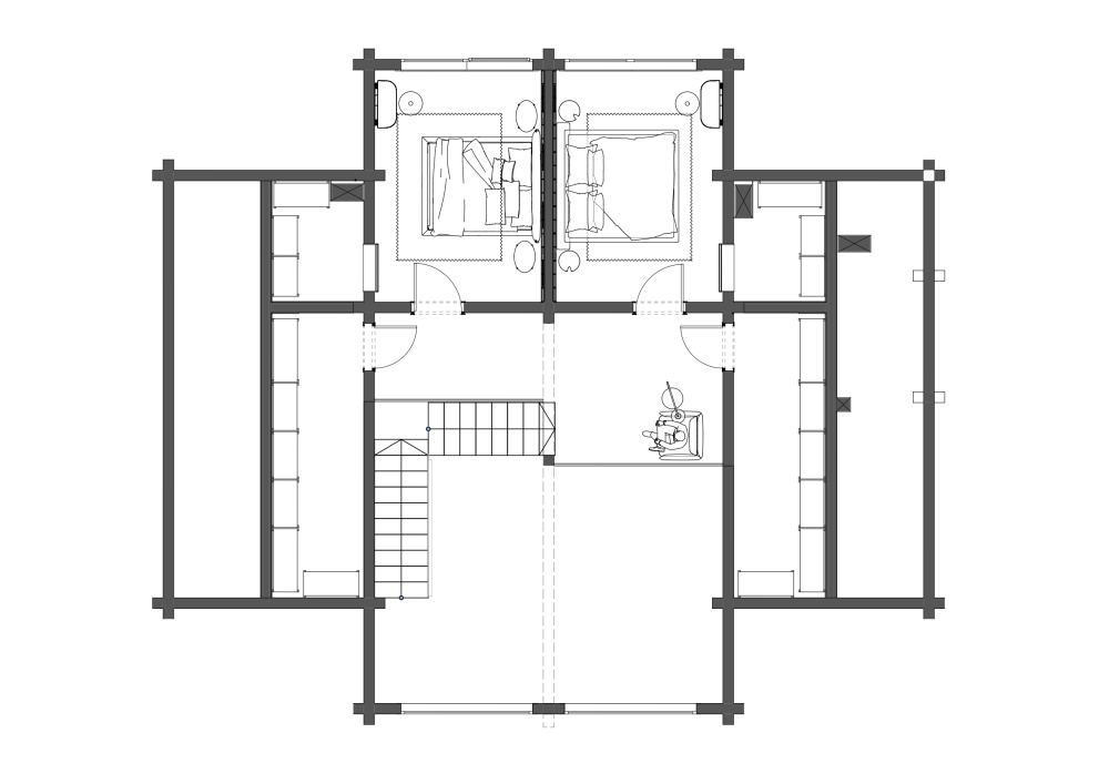
谢尔盖·弗罗洛夫、马克西姆·埃夫雷莫夫和柳博夫·罗曼诺娃在111d.Buro工作室为奥卡河岸设计了一栋200平方米的乡村别墅。距离杜登修道院只有几米远。这所房子是由霍尔兹之家建造的,是一个远离城市喧嚣的庇护所,也是一个私人欣赏大自然的地方。客户的主要和无条件的愿望是最大限度地发现和强调木质原木的纹理,这是由于他对天然正宗材料的真诚热爱。

vsszan50527180015513.jpg
vsszan50527180015514.jpg
vsszan50527180015515.jpg
vsszan50527180015516.jpg
vsszan50527180015517.jpg
vsszan50527180015518.jpg
vsszan50527180015519.jpg
vsszan505271800155110.jpg
vsszan505271800155111.jpg
vsszan505271800155112.jpg
vsszan505271800155113.jpg
vsszan505271800155114.jpg
vsszan505271800155115.jpg
vsszan505271800155116.jpg
vsszan505271800155117.jpg
vsszan505271800155118.jpg
vsszan505271800155119.jpg
vsszan505271800155120.jpg
vsszan505271800155121.jpg
vsszan505271800155122.jpg
vsszan505271800155123.jpg
vsszan505271800155124.jpg
vsszan505271800155125.jpg
vsszan505271800155126.jpg
vsszan505271800155127.jpg
vsszan505271800155128.jpg
vsszan505271800155129.jpg
vsszan505271800155130.jpg
  • 转载自:interior.ru
  • 图片@interior.ru
  • 语言:俄语
  • 编辑:序赞网
  • 翻译:序赞网
  • 阅读原文
Ai 分析中……

序赞Ai时刻等待着你的命令!~

与Ai对话形式持续执行相关Ai智能体任务。

syhgdesign2025-10-21 00:41:24
感谢楼主辛苦分享
您需要登录后才可以回帖 登录 | 注册序赞号

快速回复 返回顶部 返回列表