手绘客厅效果图设计
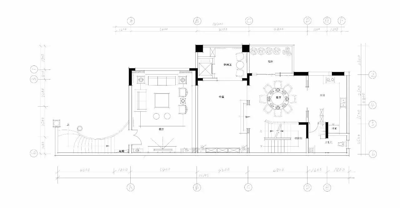
第一步:量房确定空间的尺寸,
第二步:拿回公司导入CAD,画出框架,
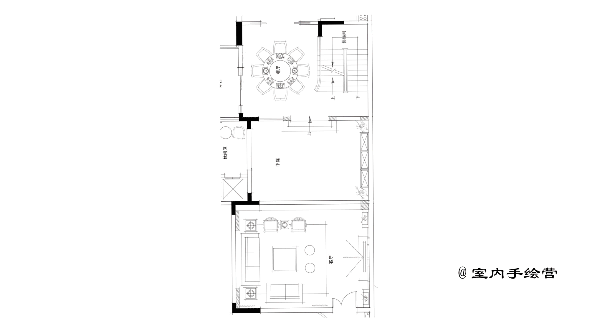
第三步:开始用手绘推敲方案,我们可能需要很多草图来确定最后的平面方案。接着我们需要去找一些查考图片,给客户看,确定客户需要怎么样风格。能后设计师自己考量下这个设计的细节,那一部分需要什么元素,根据自己的经验结合空间去设计出更精彩的空间(前提是跟客户谈好设计的费用,因为造价费的多少也确定整个空间的效果)。签定合同,开始全面推敲整个效果图的细节,天花、墙面、地面的元素汇总在一起,我们就可以出效果图了。直接根据平面推敲一张手绘效果图,在短时里就跟给业主看到你的设计内容。
我们也挑出一些学员手绘作品:
也有同学根据自己的想法设计爱马仕风格的客厅空间这个同学设计空间还为完善,因为时间原因,但足以看出一个设计师的想法


其它的同学虽能没有去设计自己的想法,直接跟着老师的画了这张效果图,手绘效果图还是很不错,希望能以后能把手绘用于设计。
附带视频请关注微信公众平台:室内手绘营

AI文本分析中……
AI色彩命名中……

序赞Ai时刻等待着你的命令!~

与Ai对话形式持续执行相关Ai智能体任务。

暂时没有评论,你回一个呗!~

您需要登录后才可以回帖 登录 | 注册序赞号

快速回复 返回顶部 返回列表