
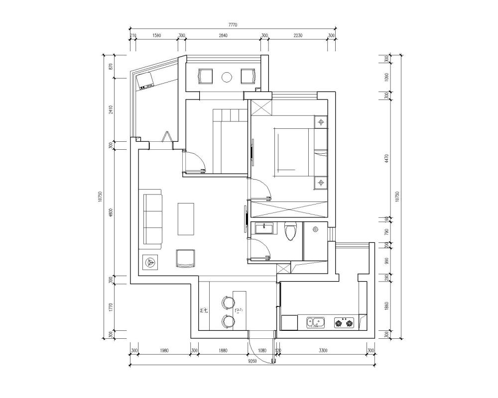
- 平面规划
- >
- 住宅
- >
- 婚房,结构比较蛋疼,求批
- 2015-10-03
- 3339
- 0
- 0
| |
AI文本分析中……
AI色彩命名中……
序赞Ai时刻等待着你的命令!~
与Ai对话形式持续执行相关Ai智能体任务。
wx_CcFQ977c2015-10-4 16:08:45
| ||
wx_CcFQ977c2015-10-4 16:10:26
| ||
wx_CcFQ977c2015-10-4 16:12:56
| ||
鸡肋小宣2015-10-5 14:53:13
| ||
liuhaizhou2015-10-6 06:34:34
| ||
xieba06292015-10-6 10:53:43
| ||
Therainmen2015-10-7 10:54:00
| ||
黑负你2015-10-7 15:49:39
| ||
浏览过的版块 |





