AI文本分析中……
AI色彩命名中……

序赞Ai时刻等待着你的命令!~

与Ai对话形式持续执行相关Ai智能体任务。

jxymt2014-4-16 11:23:34
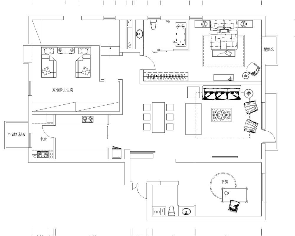
凑个热闹,我觉得楼上有好方案,楼主可以借鉴一下的,只是剪力墙的结构是否正确。重点在公共空间的处理协调。
平面特别不舒服,求创新型有趣味性的平面!_@MT-BBS_平面调整-Model.png
半生熟2014-4-16 13:45:22
5.jpg

Sokjut2014-4-23 14:45:54
蛀牙槿丶van 发表于 2014-4-10 13:56
哈哈,又修改了一下,继续努力!!

谢谢亲爱的,书房那儿加了个吧台区,厨房加了小厨岛和整体的电器墙都很好用,餐厅和厨房的关系拉近了,我得好好想想玄关怎么处理了,谢谢~
1234
您需要登录后才可以回帖 登录 | 注册序赞号

快速回复 返回顶部 返回列表